2-комнатная квартира по ул.Оськина, 62
|
Цена: 160 574 бел. руб.
54 000 у.е.
-->
Цена за кв.м: 3 104 бел. руб. Эквивалент цены (справочно) по курсу НБ РБ: За объект: 54 000 дол. США За 1 кв.м. 1 044 дол. США Все расчеты по сделке в соответствии с законодательством производятся в белорусских рублях
Объект № 99816
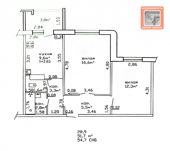
Продается 2-комнатная квартира в 104-м микрорайоне (Южном). Общая площадь квартиры по СНБ 54.7 кв.м. В квартире просторная кухня с застекленной лоджией, установлены счетчики воды и газа, есть бойлер для подогрева воды в период отключения горячего водоснабжения, металлическая входная дверь, шпонированные межкомнатные двери. домофон, интернет. Рядом с домом новый детский сад, детская поликлиника, магазины. остановка общественного транспорта, парковка во дворе. По всем вопросам обращайтесь к ответственному сотруднику: СКРЯБИН Владимир Сергеевич +375(44)511-22-11Объект под №: 99816
По вопросам обращайтесь:
Администратор Admin |
Параметры
Описание
Фото
Видео
Планировка
На карте
Связаться со специалистом
Продается 2-комнатная квартира в 104-м микрорайоне (Южном). Общая площадь квартиры по СНБ 54.7 кв.м. В квартире просторная кухня с застекленной лоджией, установлены счетчики воды и газа, есть бойлер для подогрева воды в период отключения горячего водоснабжения, металлическая входная дверь, шпонированные межкомнатные двери. домофон, интернет. Рядом с домом новый детский сад, детская поликлиника, магазины. остановка общественного транспорта, парковка во дворе.
Количество комнат (всего/изол.) — 2/2
Продается 2-комнатная квартира в 104-м микрорайоне (Южном). Общая площадь квартиры по СНБ 54.7 кв.м. В квартире просторная кухня с застекленной лоджией, установлены счетчики воды и газа, есть бойлер для подогрева воды в период отключения горячего водоснабжения, металлическая входная дверь, шпонированные межкомнатные двери. домофон, интернет.
Рядом с домом новый детский сад, детская поликлиника, магазины. остановка общественного транспорта, парковка во дворе. Заявка на просмотр |
|||







+375(44)511-22-11
Администратор Admin
