Квартира в доме, г. Речица, ул. Заслонова
|
Цена: 58 386 бел. руб.
20 000 у.е.
-->
Цена за кв.м: 908 бел. руб. Эквивалент цены (справочно) по курсу НБ РБ: За объект: 20 000 дол. США За 1 кв.м. 311 дол. США Все расчеты по сделке в соответствии с законодательством производятся в белорусских рублях
Объект № 99976
Предлагаем к продаже квартиру в частном жилом доме, располагающуюся по улице Заслонова в городе Речица Гомельской области. Обращаем внимание, что доля вычленена и зарегистрирована в БТИ как отдельная квартира! В объявлении указаны цена и описание только продаваемой части дома. Отличное месторасположение дома, малоэтажная застройка, дом располагается в районе улицы Чапаева. С улицы организован удобный подъезд к дому. - стандартная планировка дома общей площадью 64 кв.м. с пристройкой; - отдельный вход с улицы с закрепленным земельным участком размером 9 соток; - дом с материалом стен из кирпича 1974 года постройки; - жилое состояние дома, но требуется внутренняя отделка всех помещений; - 4 светлые жилые комнаты; - отопление от котла на газу: установлен действующий газовый котел; - центральное водоснабжение: вода заведена в дом; - санузел в доме раздельный, центральная канализация; - мебель и обстановка дома частично входят в стоимость продажи; - установлены счётчики воды, света, газа; - крыша покрыта шифером. Также на территории дома расположены просторный кирпичный гараж, блочный сарай; имеются насаждения. Земля идеально подходит для огородничества. Документы полностью готовы к продаже: имеется технический паспорт на квартиру в блокированном жилом доме. Без обмена. По всем вопросам обращайтесь к ответственному сотруднику: ВОЛЬШТЕЙН Олег Маркович +375 (44) 511-22-11Объект под №: 99976
По вопросам обращайтесь:
Администратор Admin |
Параметры
Описание
Фото
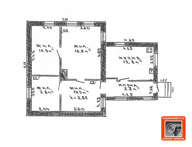
Планировка
На карте
Связаться со специалистом
Часть дома.
Количество комнат (всего/изол.) — 4/2
Предлагаем к продаже квартиру в частном жилом доме, располагающуюся по улице Заслонова в городе Речица Гомельской области. Обращаем внимание, что доля вычленена и зарегистрирована в БТИ как отдельная квартира! В объявлении указаны цена и описание только продаваемой части дома.
Отличное месторасположение дома, малоэтажная застройка, дом располагается в районе улицы Чапаева. С улицы организован удобный подъезд к дому. - стандартная планировка дома общей площадью 64 кв.м. с пристройкой; - отдельный вход с улицы с закрепленным земельным участком размером 9 соток; - дом с материалом стен из кирпича 1974 года постройки; - жилое состояние дома, но требуется внутренняя отделка всех помещений; - 4 светлые жилые комнаты; - отопление от котла на газу: установлен действующий газовый котел; - центральное водоснабжение: вода заведена в дом; - санузел в доме раздельный, центральная канализация; - мебель и обстановка дома частично входят в стоимость продажи; - установлены счётчики воды, света, газа; - крыша покрыта шифером. Также на территории дома расположены просторный кирпичный гараж, блочный сарай; имеются насаждения. Земля идеально подходит для огородничества. Документы полностью готовы к продаже: имеется технический паспорт на квартиру в блокированном жилом доме. Без обмена. Заявка на просмотр |
|||








+375 (44) 511-22-11
Администратор Admin
